Einblicke öffentlich

Stöbern Sie einfach in der Fotogalerie

und machen Sie sich ein Bild von meiner Arbeit:

  • Miele Gästehaus

    Miele Gästehaus

     

    Laden Sie hier die Dokumentation als PDF herunter:

  • Altes Gasthaus Rugge

    Altes Gasthaus Rugge, Herzebrock-Clarholz

     

    · Überarbeitung beider Damen- und

      Herren-WC-Anlagen im Vorraum

    · komplette Entkernung

    · Ansichten mit Darstellung Fliesenspiegel und Farbauswahl

    · Baubetreuung

  • Saalgestaltung Gasthaus Gerland

    Saalgestaltung Gasthaus Gerland

     

     

  • Restaurant »Zum Jägerkrug«

    Restaurant / Hotel »zum Jägerkrug« Familie Warning, Bad Rothenfelde

     

    · Teilbereiche: Saalüberarbeitung

    · Lackdecken mit LED Beleuchtung

    · Neue Bestuhlung

    · Entwurf / Farbgestaltung

  • Gemeinnütziger Bauverein

    Gemeinnütziger Bauverein, Gütersloh

     

    · Innenraumgestaltung mit Farbwahl und Bodenbelag

    · Darstellung mit Grundriss, 3-D-Ansichten und Isometrie

    · Möbel- und Leuchtenauswahl

     

    Eine Zusammenarbeit mit dem Gütersloher Architekturbüro Heinrich Voßhans

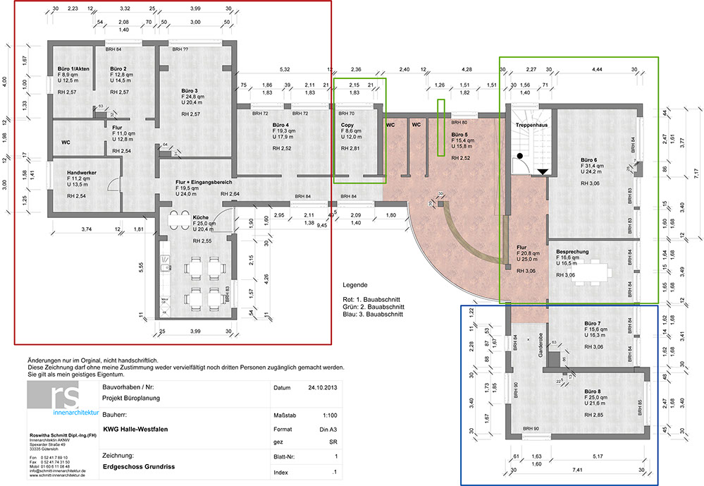
  • KWG  KreisWohnstätten Genossenschaft  Halle Westfalen eG

    KWG      KreisWohnstätten Genossenschaft  Halle Westfalen eG

    Planung einer Büroeinrichtung in drei Bauabschnitten im laufenden Betrieb

     

    · Bodenbelag

    · Büromöbel

    · Beleuchtung

    · Planung einer kleinen Kantine mit Küche

    · Farbgestaltung

  • Entwurf Gaststätte

    Gaststätte Schlüter

     

    · Entwurf Grundriss

    · Isometrie

    · Farbidee

    · Deckensegel, um die Technik / Lüftung

      und Beleuchtung unterzubringen

  • Entwurf Firmenkantine

    Entwurf Firmenkantine

     

    · Entwurfsdarstellung mit Grundriss

    · Isometrie

    · 3-D-Ansichten aus verschiedenen Blickrichtungen

  • Gasthaus Gerland

    Gasthaus Gerland Sachsenhagen / Nienbrügge

     

    · Komplette Überarbeitung

    · Materialauswahl

    · Entwurf

    · Farbauswahl

    · Einbringen der Lüftung in Zusammenarbeit mit einem

      Heizungs- / Sanitär-Planungsbüro

  • Gütersloher Brauhaus

    Gütersloher Brauhaus

     

    · Überarbeitung der vorhandenen GK-Decke mit Lichtvoute

      und neuer NV-Beleuchtung, neue Saalfarbgestaltung

  • Modehaus Starp

    Modehaus Starp, Braut- und Abendmoden,

    Verl-Kaunitz

     

    · Überarbeitung des Eingangsbereiches, ca. 200 qm

      mit Boden-Decken-Leuchtengestaltung

    · Materialauswahl

    · Entwurf der individuellen Ladenbaumöbel

    · Darstellung Grundriss, Ansichten, Elektroplan,

      3-D Kabinendarstellung

    · Projektbetreuung

  •  Eisdiele Laurentius

    Eisdiele Laurentius, neben Gasthaus Rugge,

    Herzebrock-Clarholz

     

    · Überarbeitung Decke mit indirektem Licht

    · Farbgestaltung

    · Überarbeitung Tresen

    · Wandgestaltung

     

  • Ratssaal Herzebrock-Clarholz

    Ratssaal Gemeinde Herzebrock-Clarholz

     

    · Überarbeitung Decke mit indirektem Licht

    · Entwurf Tisch

    · Auswahl Stühle

    · Farbgestaltung

  • Zahnarztpraxis Dobroschke

    Zahnarztpraxis Dobroschke,  Gütersloh

     

    Innenarchitektur für die Zahnarztpraxis mit sieben Behandlungszimmern

    · Kompletter Möbelentwurf

    · Leuchten Auswahl

    · Bodenbelag

    · Türengestaltung

    · Farbgestaltung

     

    in Zusammenarbeit mit dem Architekturbüro Heinrich Voßhans, Gütersloh.

Roswitha Schmitt | Innenarchitektin AKNW

Spexarder Straße 49 | 33335 Gütersloh

Fon 0 52 41.7 89 10 |  Fax 0 52 41.74 31 50 | Mobil 01 60.6 11 08 48

Roswitha Schmitt |

Innenarchitektin AKNW